PEDREGAL LA SILLA

$ 6,500,000

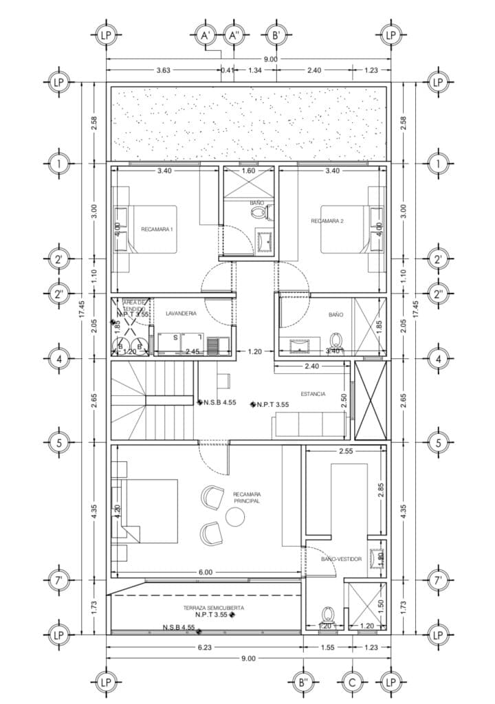
Terreno 157m2
Construcción 263m2
2 niveles, cochera para 2 autos, 3 recámaras con baño vestidor, sala, comedor, cocina, lavandería, cuarto de servicio. Acabados de lujo equipada! incluye cocina integral, carpintería en vestidores, canceles y barandales de cristal templado.
Zona Sur.
Rosy Mtz.

Información

Publicación actualizada: 2022-10-31 21:00:18 Recamaras: 3 Niveles: 2 Construcción : 236 m²
Terreno: 157 m² Tipo:

Ver en el mapa / Barrio

Esta Propiedad () en Monterrey esta en y esta publicada en Home Inmobiliaria. Esta propiedad tiene precio de $ 6,500,000. Tiene 3 сuartos, , y tiene un terreno de 236 m².